Устройство и принцип работы котла КВ-0.8 на угле с топкой ТЧЗМ
КВ-0.8 состоит из прочного стального корпуса, который имеет сварные стенки. Оборудование оснащено топкой ТЧЗМ. Данный вид топки подразумевает наличие механических забрасывателей, которые дополнены решеткой цепного типа для обратного хода. Благодаря данному механизму забрасывающая система обладает средней производительностью до 20-25 тонн в час. Корпус из газоплотной стали хорошо выдерживает высокие температуры. Заводские котлы рассчитаны на работу с топливом, которое имеет не более 40% влажности. Все фирменные приборы оборудованы специальной арматурой запорного типа.
Особенности и ключевые преимущества
Устройства КВ-0.8 на угле с топкой ТЧЗМ рассчитаны на высокопродуктивную и длительную работу. Котлы способны обеспечивать теплом множество потребителей. Следует выделить несколько ключевых преимуществ:
- высокая емкость оборудования;
- полная механизация всех процессов;
- большая производительность оборудования;
- высокая надежность конструкции;
- экономичность во время работы;
- низкие требования для настройки и установки.
Заводские устройства имеют надежную защиту от накипи и окисления. Котлы оснащены всеми Необходимыми средствами безопасности в виде термометров и сбрасывающих клапанов.
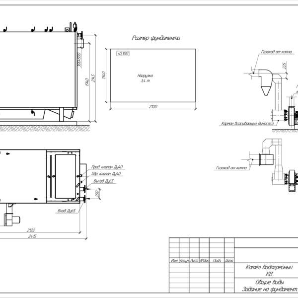
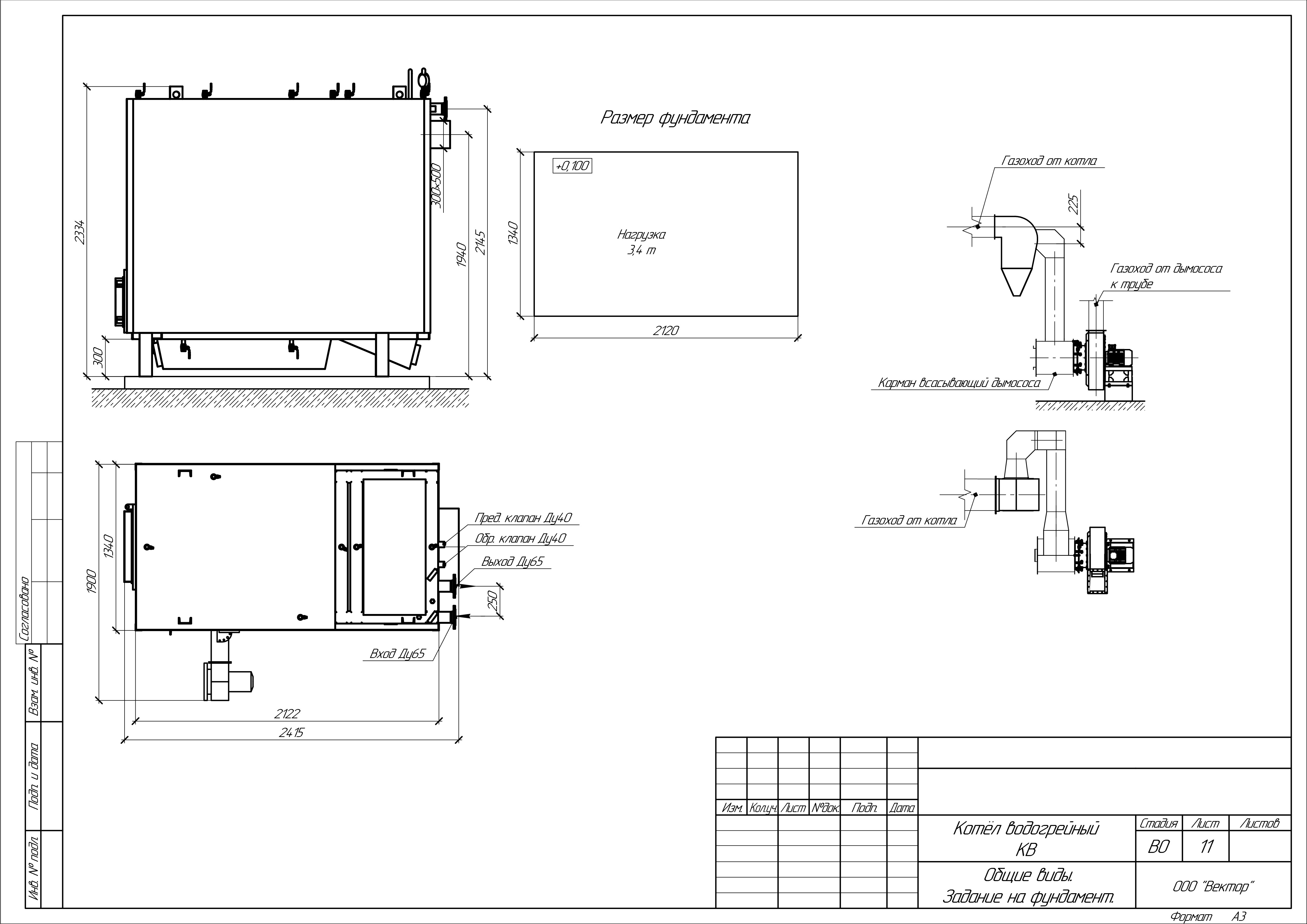
Размещение КВ-0.8 на угле с топкой ТЧЗМ и установка
Размещение агрегатов планируется с учетом технических требований. Перед установкой осуществляется проверка качества бетонного основания. Специалисты проводят различные измерения в горизонтальной и вертикальной плоскости. Также осуществляется подведение других коммуникаций, которые необходимы для управления котельными системами. После установки проводится проверка работы всех систем.
Эксплуатация и техническое обслуживание
Котёл КВ-0.8 на угле с топкой ТЧЗМ предназначен для нагрева воды, которая поставляется потребителям. Котлы целесообразно использовать промышленным и коммунальным предприятиям, которые осуществляют поставки теплоносителя. Высокая мощность систем позволяет непрерывно снабжать потребителей.
Приобрести котёл КВ-0.8 на угле с топкой ТЧЗМ у нас
Приобрести котёл КВ-0.8 на угле с топкой ТЧЗМ и другие модификации можно через нашу компанию. Также возможен предварительный заказ оборудования через сайт и форму обратной связи. Дополнительно покупатели имеют возможность заказать котел по телефону. Предварительно необходимо ознакомиться с характеристиками.

