Топка ТЛЗМ-0,5/2,4 в Красноярске

ТЛЗМ-0,5/2,4 топки механического типа являются базовой основой для обустройства твердотопливных котлов повышенной мощности. Оборудование применяется в котельных комнатах с использованием дополнительных механизированных систем, которые необходимы для непрерывной подачи твердого топлива. Системы данного типа считаются неприхотливыми и долговечными.

Цена:
Цена не указана
Количество:
Отправляя свои личные данные через формы на сайте, Вы даёте своё согласие на обработку персональных данных согласно Федеральному закону №152-ФЗ «О персональных данных» от 27.07.2006 г. в редакции от 01.07.2017.

Устройство и принцип работы

Системы ТЛЗМ-0,5/2,4 работают по принципу непрерывной подачи твердого топлива, которое равномерно укладывается на уже горящий слой. В совокупности с цепной ленточной решеткой топка зажигается снизу, а горение передается по всей площади. Таким образом, система поддерживает стабильное и постоянное выделение тепла. Благодаря применению технологии нижнего горения в топке сгорают даже самые мелкие пылевые фракции топлива. Подобные системы легко автоматизируются за счет своей простой конструкции.

Особенности и главные преимущества

Универсальные ТЛЗМ-0,5/2,4 системы обладают высокой эффективностью работы, что немаловажно для крупных промышленных предприятий и коммунальных хозяйств. Следует выделить несколько основных преимуществ оборудования:

  • широкий диапазон регулировки (25-100%);
  • автоматизированный заброс горючего;
  • совместимость с твердотопливными котлами разных марок;
  • легкость обслуживания;
  • минимальные потери тепла.

Топки ТЛЗМ-0,5/2,4 механического типа поддерживают максимальный размер кусков твердого топлива до 50 мм. Надежная конструкция позволяет работать длительное время под высокой температурой.

Размещение и монтаж оборудования

Рамная конструкция топки ТЛЗМ-0,5/2,4 устанавливается на специально подготовленное место, где планируется обустроить котел. При этом основание должно отливаться из бетона. В основу устанавливаются специальные башмаки, которые предназначены для крепления топки. Монтажные процедуры выполняются с учетом всех технических требований. Предварительно проводится оценка работы механизированных систем. Важно обеспечить непрерывность заброса топлива. Во время монтажа проверяется вертикальность и горизонтальность конструкций. После установки специалисты тестируют топку в разных режимах.

Техническое обслуживание и эксплуатация

Топки данного типа ТЛЗМ-0,5/2,4 нуждаются в периодической чистке. Для нормальной работы потребуется удаление шлаковых отложений на стенках и плоскости колосникового полотна. Также проводится тщательный осмотр всех рабочих систем. Дополнительно проверяется вентиляция и вытяжка. Все подвижные системы механизма подачи смазываются специальными составами.

Купить топку ТЛЗМ-0,5/2,4

Приобрести оборудование ТЛЗМ-0,5/2,4 можно через нашу компанию. В наличии имеется большой ассортимент топочных систем и других агрегатов. Для приобретения можно сделать заказ через обратную форму или по контактному номеру. Консультанты предоставят всю необходимую информацию в телефонном режиме.

Характеристики
Серия: ТЛЗМ
Вид топлива: Бурый угольКаменный угольАнтрацит
Диапазон изменения нагрузки: 25-100 %
Коэффициент избытка воздуха за топкой, не более: 1,3-1,5
Потери тепла от химического недожега, не более: 0,75 %
Потери тепла от механического недожега: 10 %
Влажность топлива, не более: 40 %
Зольность топлива, не более: 35 %
Содержание мелочи (0-6 мм), не более: 60 %
Максимальный размер куска: 40 мм
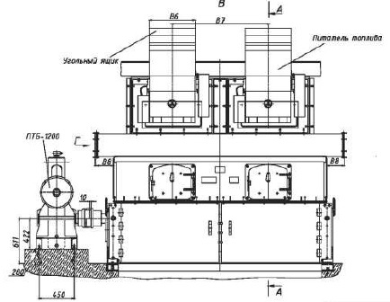
Ширина колосниковой решетки: 500 мм
Длина колосниковой решетки: 2400 мм
Активная площадь колосниковой решетки: 0,9 м²
Ширина забрасывателя: 400 мм
Габаритные размеры: 3800х1100х3175 мм
Масса: 4930 кг
Вид топки: Механическая
Схемы
Комплект поставки

Города поставок

Москва
Пн-Пт 09:00 - 18:00
Сб 09:00 - 17:00
Карачаево-Черкесская Республика
Пн-Пт 09:00 - 18:00
Сб 09:00 - 17:00
Екатеринбург
Пн-Пт 09:00 - 18:00
Сб 09:00 - 17:00

Совершите покупку за 4 шага

Шаг 1
Выберите товары из каталога
Шаг 2
Поместите нужные вам товары в корзины
Шаг 3
Укажите свои контактные данные в форме обратной связи
Шаг 5
Ожидайте звонка от менеджера для оформления покупки

Похожие товары

Топки ТШПМ
Топки ТШПМ
Цена от 0 руб.
Топки ТЧЗМ
Топки ТЧЗМ
Цена от 0 руб.
Топки ТЛПХ
Топки ТЛПХ
Цена от 0 руб.
Вы смотрели эти товары
Дробилки
Дробилка ДО-1М — это техническое устройство, которое предназначено для измельчения серых и бурых углей, используемых для отопления в котельных или доменных печах. Также может использоваться для измельчения любых материалов, которые по плотности схожи с углем.
Дробилки
Промышленная дробилка ВДП-15 представляет собой дробилку-питатель, которая используется для предварительного измельчения угля и подачи готового сырья на транспортер. Оборудование способно разбивать крупную фракцию твердого топлива для оптимизации процессов горения. Применение дробилки данного типа позволяет исключить остановку котельной на случай выхода из строя основного бункера с углем.
Дробилки
Дробилка серии ВДГ-10 представляет собой промышленное дробильное устройство, которое предназначено для грохочения и дробления каменных углей. Оборудование способно измельчать фракции твердого топлива, а также осуществлять его подачу на транспортер. Серийные дробилки применяются на разных производствах, где имеется твердотопливный котел.